电话咨询
微信号: xinyu574381068
Whatsapp: +84339607308
Summit Building拥有位于Nguyễn Chánh – Trần Duy Hưng 交叉口的一个黄金位置,首都西边门户的主要交通干线。这也是新的行政-经济中心,纸桥郡、巴亭郡、青春郡三大区域的交汇点。在新行政、商业中心的规划中,这里拥有全市最发达的基础设施和配套,集中了许多办公楼和政府机构,如:国家会议中心、江南大厦、乐天大厦、JW万豪酒店、皇冠假日酒店、外交部、公安部、,内政部、自然资源环境部、最高人民检察院、最高人民法院、民族事务委员会等。所有这些都创造了一个不仅在政治、经济和文化上的发展,而且吸引精英和高素质居民的地区。





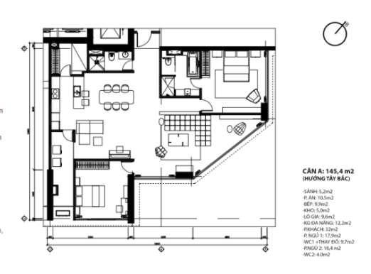
THE SUMMIT BUILDING 位于河内 TRAN DUY HUNG 216号,非常方便生活。住宅设计巧妙,面积多样,可满足不同客户的需求。面积从86平方米到145平方米,设有2至3间卧室 建设非常合理,灵活的布局,便于放松和生活。所有套房都拥有全景观视野,得益于欧洲标准的low E玻璃技术,从天花板到地面均覆盖玻璃窗。从The Summit 216独特的空间中,居民可观看城市的全景,感受到城市间清凉的自然气息和城市西边门户的生活节奏。
THE SUMMIT BUILDING 拥有高级便利:5层停车场,公共服务区 ,此用有内区花园游泳池,娱乐区,瑜伽,健身房,跑步道,喷泉水,等等. 项目位于河东郡中心位置,非常方便生活。





青春郡位于二环线和三环线的之间。三环路是目前河内最繁忙的重要交通干道,连接河内新CBD区域南慈廉郡和纸桥郡,河内的行政中心巴亭郡,以及未来极具发展空间的黄梅郡。
项目所在的青春郡名校林立,有越南最著名的阿姆斯特丹中学、日本国际学校、河内大学等,13所小学,13所初中,10所高中及12所大学。莘莘学子及海内外科研工作者都选择居住于此,薪火相传,带动了区域的价值提升。
项目旁边紧邻河内国际医院Thu Cuc Inter national Hospital,该诊所的面积超过7,000平方米,配备了现代化的医疗设施,医疗机器,设备均从世界各地著名的医疗设备供应商处进口,确保了就医的准确性,安全性和有效性。此外,Thu Cuc拥有专业的医生和护士团队,在在国内外专业医疗领域拥有多年的工作经验。
Vincome Plaza
万豪酒店
皇冠假日酒店
Big C商场
临近Vincom Center、Big C、Grand Plaza等商场,且位于中和仁政生活区(河内的华人区)
详细付款周期请咨询Dwell官方客服
电话咨询
微信号: xinyu574381068